HydraForce公司与Famic技术公司合作,将他们的阀门库整合到Famic的自动化工作室软件中。
Hydroforce产品增强软件将允许完全建模自动化工作室内的集成液压回路。Hydragoce分销商和OEM客户将能够轻松设计使用Hydroforce组件的系统电路,并提供快速电路模拟,以验证各种系统功能,包括性能计算,热负荷要求和其他工程考虑,如马力,压降和体积效率。
HydraForce将超过900个阀门、组件和选项整合到Automation Studio中,这是一个创新的系统设计、模拟和项目文档解决方案,用于自动化和流体动力系统的设计和支持。
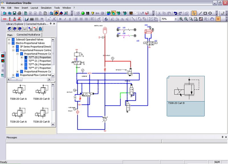
HydraForce和Famic已经为Automation Studio软件开发了详细的功能模拟,将模拟HydraForce产品在液压回路中的性能,以及它们与其他系统组件的兼容性(见图1)。自动化工作室提供了带有交互操作组件的系统动画,如操纵杆、方向盘和开关,以便将比例功能命令输入到模拟中(见图2)。
图1:使用HydraForce组件的液压回路的实时功能测试
HydraForce和Famic过去曾在i-Design上合作,这是一款液压系统设计软件,允许用户创建定制集成集成集成电路,指定阀门装配布局,以及确定装配价格。
图2:自动化工作室仿真软件中Hydroforce阀的实时功能测试。
Automation Studio V5.7现已公司提供完全兼容的Hydroforce库,以便用户可以在I-Design中启动项目,然后导出到Automation Studio进行仿真。Tony Casale,Worldworce的销售和营销副总裁有这个项目,“Hydroforce组件到Automation Studio的集成为系统设计师提供了巨大的优势。开发和原型机器所需的时间显着降低了液压回路的迭代次数和测试时间减少。将我们的产品融入自动化工作室平台,并与I-Design兼容,是我们客户更容易制作系统设计的下一个逻辑进展。“
Tony Casale还补充说:“i-Design已经成为客户通过我们的销售和工程部门提交项目的主要工具。由于我们之前与Famic在i-Design方面的合作,我们的客户现在可以无缝集成i-Design and Automation工作室的电路,在报价和发货之前进行功能测试。行业对插装阀的发展趋势已经持续了一段时间,将我们的产品纳入自动化工作室应该有助于扩大对插装阀在液压应用中的认识。”
Famic Technologies总裁Charbel Nasr表示,“当公司面临着挑战的经济条件时,管理队必须非常有创意,以便更少地做更多。自动化工作室让他们脱颖而出!该工具在产品生命周期的每一步都提高了生产率和效率。它允许按时和预算限制交付项目。它显然有所作为。最重要的是,它再次确认自动化工作室作为工程,培训和完整系统服务的独特解决方案的创新。“
Hydroforce.
www.hydraforce.com
提交:工厂自动化那流体动力那液压设备+组件那模拟那软件那阀门





告诉我们你的想法!